









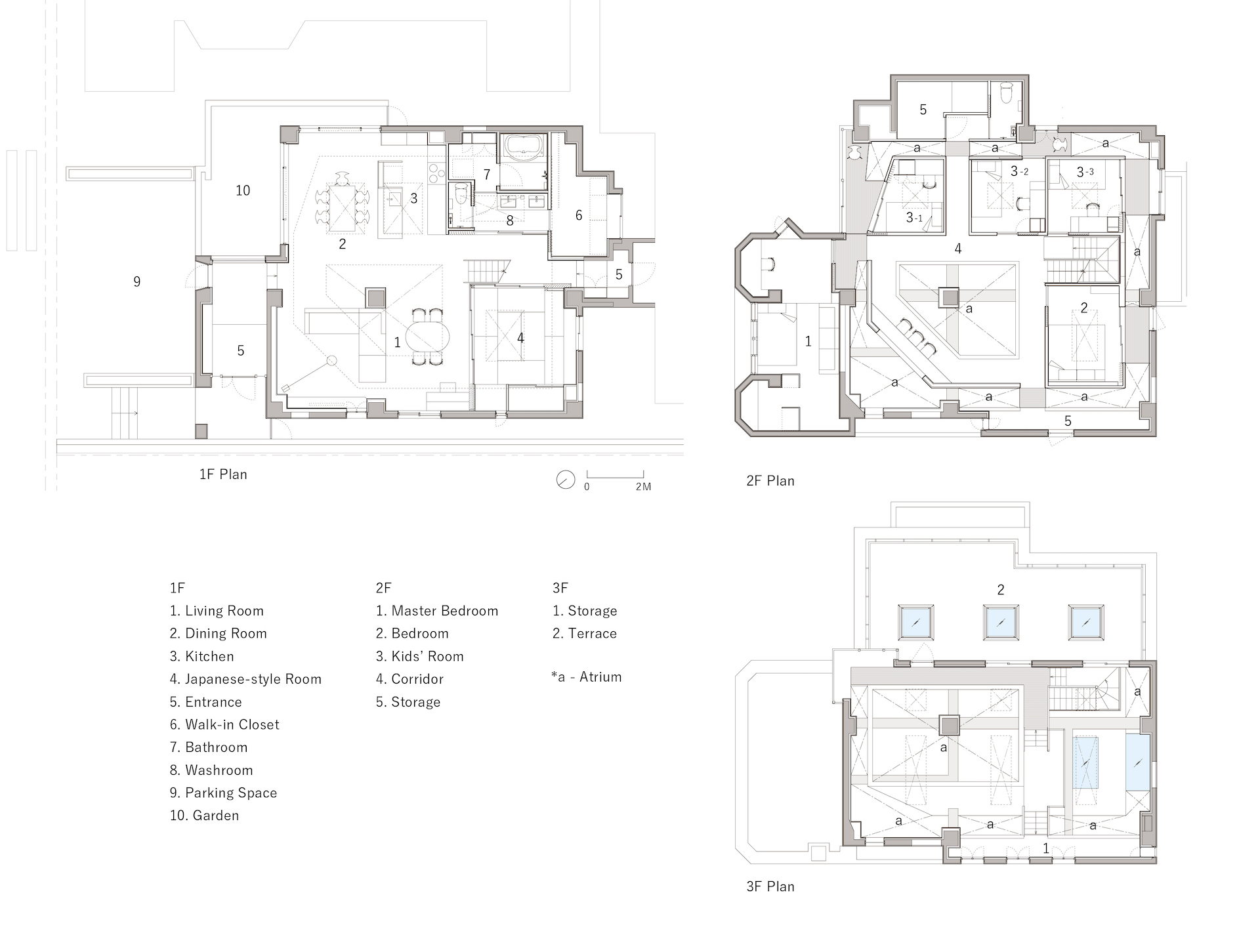
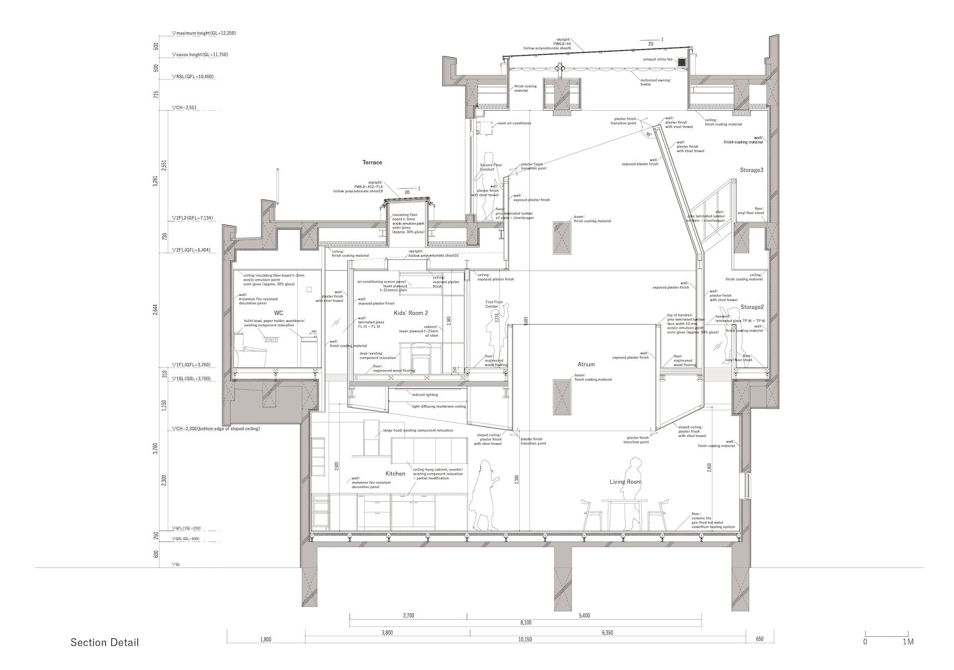
築 40 年以上が経過した住宅のリノベーション。鉄筋コンクリート造ラーメン架構 3 階建ての既存構造の耐震診断を行い、不要な床を抜き、断熱補強を施す。そして家族の個室を内包する「巣」を柱梁に寄生するように浮かべた。
巣の周囲は立体的なコモンであり、個室に設けた「内縁側」から家族の気配を感じることができる。巣は環境装置としても働き、3 層に渡って光や風、空調空気が循環していく。
既存建築物は、新築された当初から時間が流れ社会の状況が変わることで、住まい手の暮らしとの間にズレが生じていた。家族の単位が小さくなったことに合わせて大きすぎる建築を小さくする必要があったのだ。それに対し、つくりすぎたものを減らす、壊しながら新たな場所をつくるという新陳代謝のような創作の先に生まれる想定外の空間に改修の可能性を見出していった。
新しい建築の創造が見えにくい今、社会のさまざまな問題系に目を逸らさず、その歪みの中に空間を発見していきたい。
Site: Western Japan
Program : Residence
Site area: 806.07 ㎡
Building area: 157.27 ㎡ (Residential area)
Total area: 257.02 ㎡ (Residential area)、351.78m² (Existing residential area)
Structure: Existing structure/ Reinforced concrete construction, New structure/ Steel frame construction
Floor: Three Story
Architect : Yu Momoeda, Naoya Isemoto, Koki Okumura, Yuma Kuroda (YU Momoeda Architects)
Structural Engineer : Kosuke Araki (XYZ Structure)
Environmental Engineer : Studio Nora
Refining : Makoto Sato
Lighting Plan : KOIZUMI LIGHTING TECHNOLOGY
Completion : Dec. 2024
Construction : YAMAKAWAGIKEN
Photo : YASHIRO PHOTO OFFICE